菜の花不動産

物件詳細

Details

HOME > 物件一覧 > 物件詳細

中古住宅

●現状のままでのお引渡しとなります。

所在地
松本市大字和田 1705-3

価格 980 万円

土地面積 379.44㎡ (114.78坪)

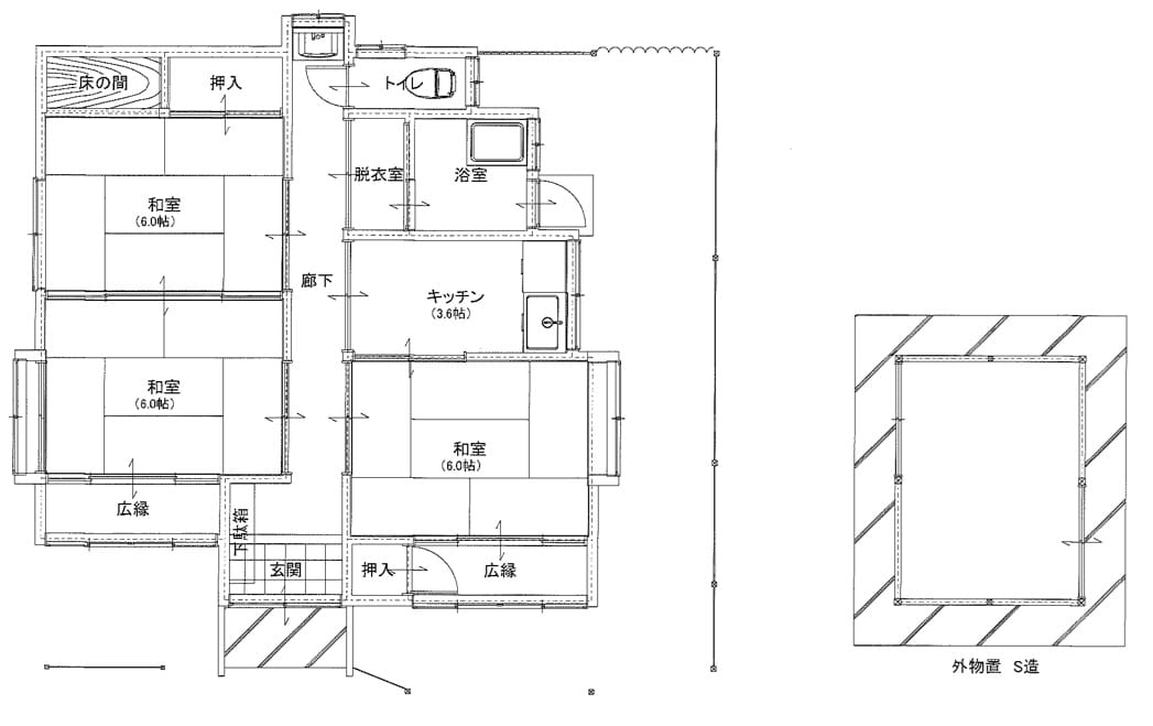
間取り3K

建物面積60.73㎡(18.37坪)

村口.

担当者より

●土地は、約115坪と広々!平屋の古家付きです。敷地内に花壇や野菜も作れそうです。
・のどかな環境です。
・徒歩5分圏内には、コンビニや郵便局もある自然豊かな立地です。
・【中部縦貫自動車道追加インターチェンジ整備事業】
(仮称)和田インターチェンジ整備予定地の近隣になります。
・軽量鉄骨造の便利な物置付き!

物件を見学されたい方は、菜の花不動産までお気軽にお問合せ下さい。

南西側から見た建物

南西側から見た建物

間取り

間取り

南東から見た建物

南東から見た建物

南西から見た建物

南西から見た建物

北側の入口

北側の入口

廊下 玄関より撮影

廊下 玄関より撮影

廊下

廊下

6帖の続間

6帖の続間

6帖 和室

6帖 和室

6帖和室と広縁

6帖和室と広縁

浴室

浴室

トイレ

トイレ

キッチン

キッチン

建物の北側を撮影

建物の北側を撮影

建物の東側

建物の東側

建物の西側 北側からの撮影

建物の西側 北側からの撮影

建物の西側 南側からの撮影

建物の西側 南側からの撮影

物置 入口側

物置 入口側

物置 北側からの撮影

物置 北側からの撮影

/

所在地 松本市大字和田 1705-3 建物名
価格 980万円 消費税内税額
土地面積 379.44㎡ (114.78坪) 建物面積 60.73㎡(18.37坪)
間取 3K 構造 木造
詳細間取 和室:6帖×3 その他一時金
総階数 1階  完成年月 1972年
湯権 下水道 公共下水道
通学区 松本市立芝沢小学校 (900m)
松本市立高綱中学校 (1600m)
引渡/入居日 即可能
手数料 私道負担面積
接道状況 方角:北 道路幅員:4m 公私区分:公道 
設備 BT別室・庭・日当り良好・閑静住宅街・セットバック済・上水道・下水道・駐車場3台分
駐車場 有 
施工会社
交通 電車: 松本電気鉄道北新・松本大学前駅 距離2000m 徒歩25分 車5分
電車: 松本電気鉄道新村駅 距離2300m 徒歩28分 車6分
バス: 松本コミュニティ線 和田町郵便局バス停 距離300m 徒歩4分 
高速道路: 長野道 松本I.C. 車15分 
備考 ●市街化調整区域:市街化を抑制する区域です。原則として建築行為は認められません。
・43条の許可申請、属人制の解除が必要です。
・リフォーム、再建築可
・セットバック済み
・下水の一部が、地番1707土地に入っています。
・上水道の埋設管は、地番1705-1の敷地を経由して引込みされています。
(覚書有り)
・物置(10.68㎡(3.23坪))の一部が、市管理地へ越境しています。
・【中部縦貫自動車道追加インターチェンジ整備事業】
(仮称)和田インターチェンジ整備予定地の近隣になります。

◆【周辺環境】
・松本市和田保育園 約600m (徒歩 約8分)
・福澤医院 約300m (徒歩 約4分)
・ファミリーマート松本和田東沖店 約300m (徒歩 約4分)
・和田町郵便局 約260m (徒歩 約4分)
・JA松本ハイランド和田 約540m (徒歩 約7分)
・西友笹部店 約3400m (車 約8分)
・アイシティ21 約3800m (車 約8分)

●【その他の諸費用】
・契約印紙代
・固定資産税(日割り計算)
・登記費用
・不動産取得税(条件により減額申請あります)
【融資を受けた場合】
・銀行関係の金額
(印紙代 手数料等)
※内容により異なります。
管理番号 取引態様 媒介
最終更新日 2025-10-29

マップ

※物件位置が表示されていない場合もあります。 正確な位置は取り扱い会社へお問い合わせください

周辺施設

ローンシミュレーター

元利均等でのローンシュミレーションで、毎月の返済額を試算します。

借入金額: 万円
融資金利: %
返済期間(月数): ヶ月

返済月額

物件のお問い合わせ

物件情報 物件番号:446124 / 中古住宅 / 松本市大字和田1705-3 / 価格:980万円
お名前 必須
電話番号 必須
FAX
※FAXで資料送付をご希望の方は、必ず入力してください。
メールアドレス 必須
資料送付先 郵便番号 
住所 
※郵送で資料送付をご希望の方は、必ず入力してください。
お問い合わせ種別



ご質問内容
ご希望の条件、ご予算、その他質問事項があればご記入ください

page_top